[187] 藍住町東中富字北傍示

- [187]
- 徳島県板野郡藍住町東中富字北傍示59番3
- 価 格
- 1,800万円(税込)
- 構 造
- 鉄骨造スレート葺き2階建
- 築年月
- 平成6年6月
- 土地面積
- 495.88㎡[150.00坪]
- 建物面積
- 267.51㎡[80.92坪]
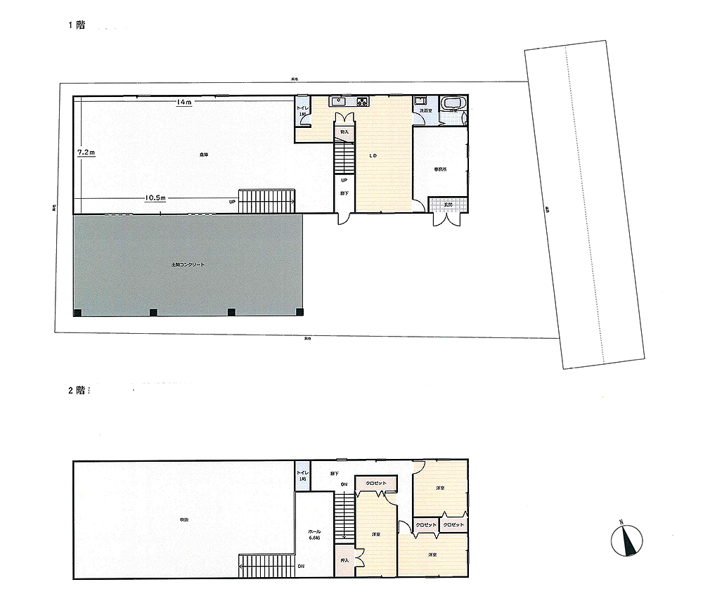
- 間取り
- 3LDK+事務所+倉庫
- 駐車場
- 4台
- 都市計画
- 非線引区域
- 用途地域
- 無指定
- 建ペイ率
- 60%
- 容積率
- 200%
- 接 道
- 東5.2m幅町道
- 教 育
- 藍住西小学校・藍住中学校
- 交 通
- 四軒屋南バス停まで徒歩3分
- 取引態様
- 仲介
- 備 考
- 事務所・居宅・倉庫
- お問い合わせ
- 090-2823-1555(渡辺)
外 観

建物ギャラリー
*画像をクリックしてください。大きい画像が開きます。
間取図









